LOFT APARTMENT

Personalized musician's 45 square meter double height ceiling loft apartment

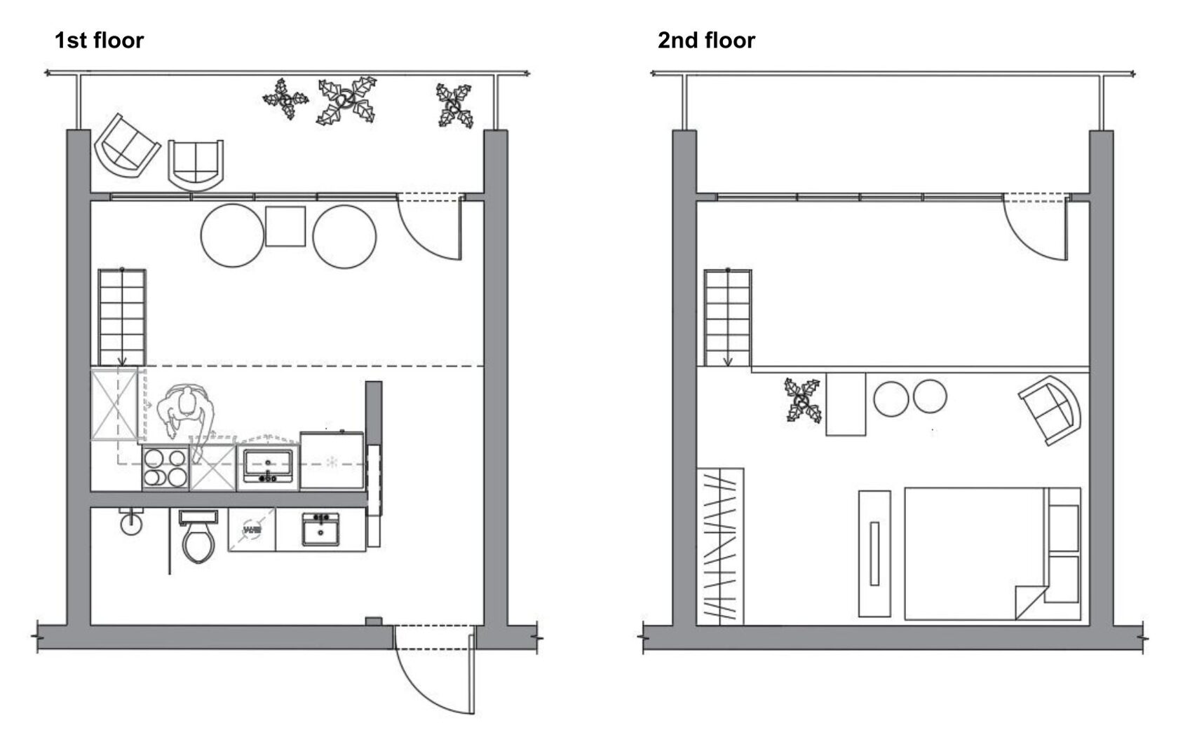
To represent client's creative passion and work field the apartment is designed in contrasting colors and shades - white and dark - and red as an accent color. On the first floor of the apartment (30 m2) is a kitchen in dark tones with a black and white stone counter top, a compact living room, a contemporary white-tiled bathroom and a balcony. On the second mezzanine floor (15 m2 ) is a sleeping area and a creative corner with a personal guitar collection and sound system. The walls throughout the apartment are covered in off-white color, and the floors are covered with vinyl stone tiles and light colored wood parquet. The cozy and colorful apartment contains all client's needs for a quality rest in the midst of an active lifestyle and also serves as a place for inspiration to create new music

//2022